1
Anzahl der Objekte: 1 | 1
Obj.: 1 | 1

Gepflegtes Einfamilienhaus mit Einliegerwohnung in beliebter und ruhiger Lage von Reichelsheim

Eingangsbereich Einfamilienhaus Reichelsheim
Eingangsbereich
309.000,- €
VERKAUFT
Seitenansicht Einfamilienhaus Reichelsheim
Seitenansicht
Flur Einfamilienhaus Reichelsheim
Flur
Wohnzimmer Einfamilienhaus Reichelsheim
Wohnzimmer
Küche EG Einfamilienhaus Reichelsheim
Küche EG
Terrasse Einfamilienhaus Reichelsheim
Terrasse
Einliegerwohnung DG Einfamilienhaus Reichelsheim
Einliegerwohnung DG
Zimmer DG Einfamilienhaus Reichelsheim
Zimmer DG
Kellergeschoss Einfamilienhaus Reichelsheim
Kellergeschoss
Erdgeschoss Einfamilienhaus Reichelsheim
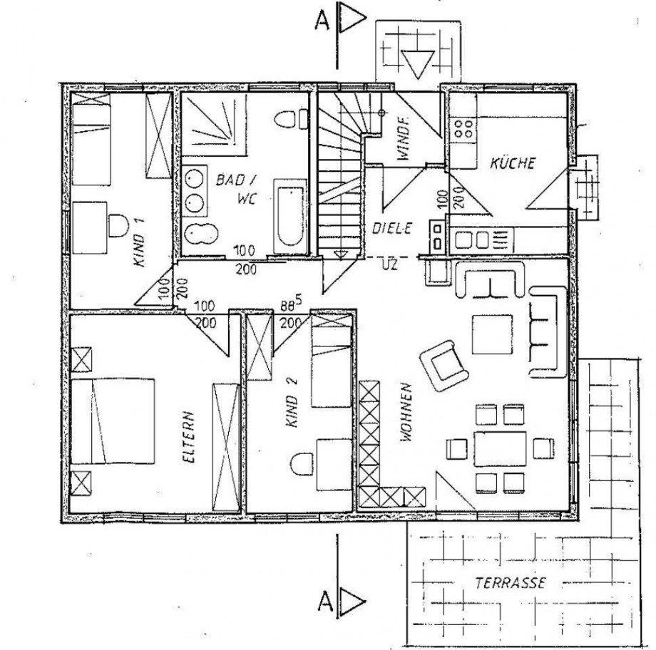
Erdgeschoss
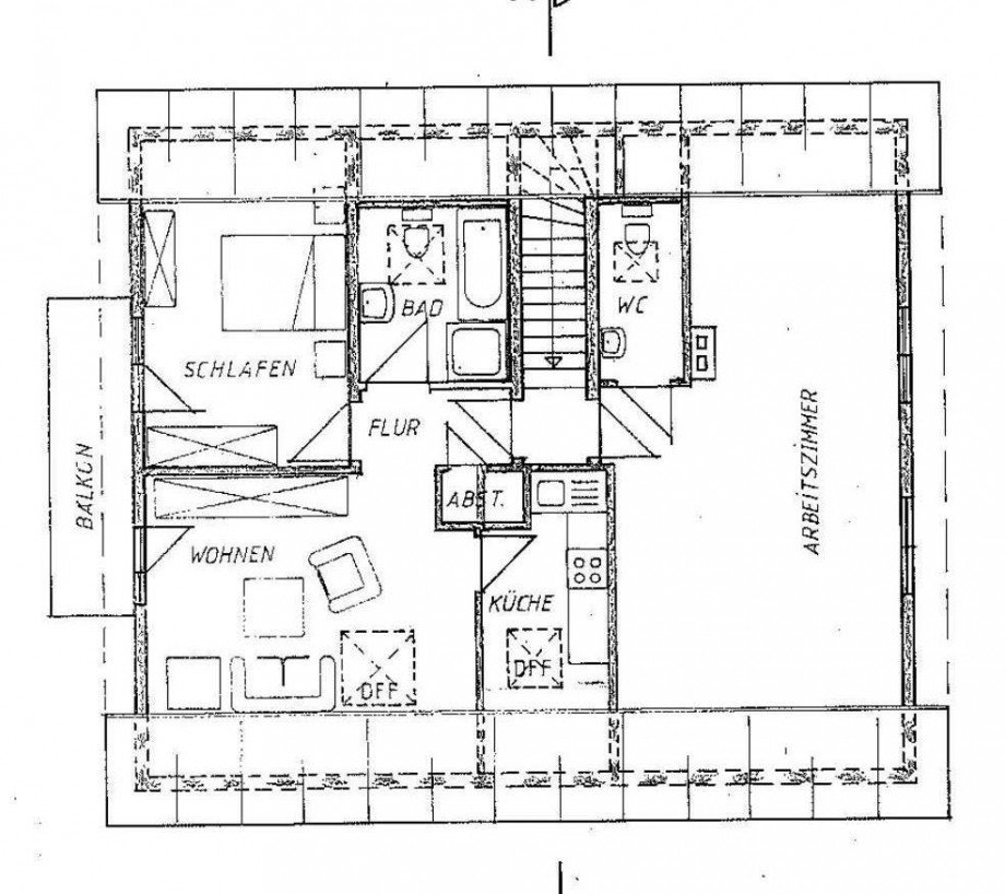
Dachgeschoss Einfamilienhaus Reichelsheim
Dachgeschoss

Objektart

Einfamilienhaus

Adresse

64385 Reichelsheim

Objektdaten

Objekt-Nr. LU1143
Wohnfläche (ca.) 181,30 m²
Zimmer 8
Kaufpreis 309.000,- €

Informationen

Nutzfläche (ca.)
111,27 m²
Vermietbare Gesamtfläche (ca.)
71 m²
Zustand
gepflegt

Ausstattung

Unterkellert

Details

Garage
Anzahl 2
teilbar ab (ca.)
181,30 m²
Schlafzimmer
5
WC
1
Bodenbelag
Fliesen, Teppich
Energieausweis Werteklasse
F
Provision für Käufer
5,95% vom Kaufpreis inkl. der MwSt. i. H. v. 19%

Wohlfühlen auf rund 292 m² Wohn-/ Nutzfläche, so könnte man am besten dieses Einfamilienhaus in leichter Hanglage beschreiben. Ihr neues Eigenheim wurde 1994 als Fertighaus der Firma Lux auf einen massiven Keller erbaut. Das 511 m² große Grundstück wurde dabei mittig bebaut, so dass sie im vorderen Bereich einen schönen eingewachsenen Garten für die Familie und im unteren Bereich der Hanglage, die im Haus integrierte Doppelgarage sowie noch weitere Stellfläche für Ihre Fahrzeuge vorfinden. Ihr neues Eigenheim bietet Ihnen insgesamt drei abgeschlossene Etagen, die Sie über den ebenen Eingangsbereich mit Windfang begehen. Die 110m² große Wohnebene im Erdgeschoss wurde barrierefrei gehalten. Hierbei schliessen Küche und das großzügige Wohn-/Esszimmer als Familienmittelpunkt sich an den Schlafbereich mit seinen drei getrennten Schlafzimmern und dem Tageslichtbad mit Dusche und Badewanne an. Die großzügige Terrasse, geht über Eck und ist über die beiden bodentiefen Fensterfronten im Wohnbereich begehbar.
Über die Treppe im Windfang gelangen Sie in das ca. 96 m² große Dachgeschoss, das eine eigenständige Einliegerwohnung, sowie ein separates Studio mit WC beinhaltet. Die Einliegerwohnung, bestehend aus zwei Zimmer, Küche ,Bad wurde mit einem neuen Estrichboden versehen, so dass Sie die Wohnung nach Ihren Wünschen gestalten können. Als Zentraler Zugang im Kellergeschoss dient der Flur, der zu den einzelnen Räumen (Wasch-, Hobby-, Abstell- und Heizraum) führt. Des Weiteren können Sie die Doppelgarage direkt im Haus begehen.

Einfamilienhaus mit Einliegerwohnung und Praxisraum

- Öl-Heizung mit zentraler Warmwasserversorgung
- 2 x 2000l Batterietank
- weiße Kunststofffenster- doppeltverglast
- teilweise elektrische Rollläden
- großzügige Terrasse
- Bodenbeläge variieren: helle Fliesen, Laminat
- moderne weiße Einbauküche
- Holztreppe Buche
- Doppelgarage mit elektrischen Sektionaltor
- Einliegerwohung DG: neuer Estrichbelag, Boden muss neu ausgelegt werden
- französischer Balkon an 2 Fenstern im DG

Ihr Neues Eigenheim befindet sich in einer ruhigen Seitenstraße, in Feldrandnähe von Reichelsheim. In ein paar Gehminuten erreichen Sie die Grundschule.
Reichelsheim mit seinen Ortsteilen liegt in der Mitte des Naturparks Odenwald. Die Nibelungenstraße (B47), die von Worms über Bensheim kommt, durchzieht das Gemeindegebiet vom Gumpener Kreuz aus nach Norden und biegt dann in Gersprenz nach Osten in Richtung Michelstadt und Erbach ab. Vom Gumpener Kreuz läuft sie zusammen mit der Bundesstraße 38, die von Weinheim kommt und nach Reinheim weiterführt. Reichelsheim verfügt über eine gute Infrastruktur. Einkaufsmärkte, Ärzte, Schulen und Kindergarten sind alle vor Ort.

Gerne präsentieren wir Ihnen Ihr neues Zuhause. Wir freuen uns auf Ihren Anruf unter 06162-9165311.

Gerne bewerte ich auch Ihre Immobilie und erstelle Ihnen eine umfassende Wertermittlung mit Marktanalyse. Ich freue mich darauf, Sie unverbindlich in einem ersten Termin zu beraten, sprechen Sie mich gerne an!

Ansprechpartner

Frau Melanie Legrum
Telefon: +49 6162 9165311
Telefax: +49 6162 9165315
info@lu-immobilien.de

Ich bin damit einverstanden, dass mir Karten von Google angezeigt werden. Es gelten die Datenschutzbedingungen von Google (https://policies.google.com/privacy).

Ich bin einverstanden

Objektanfrage

Sie haben noch Fragen zu dem Angebot oder wollen einen Besichtigungstermin vereinbaren, dann füllen Sie einfach das untenstehende Formular vollständig aus und wir setzen uns schnellstmöglich mit Ihnen in Verbindung.

* Pflichtfelder