Legrum Immobilien GmbH
Tel.: 06162 - 9165311
Fax. 06162 - 9165315
E-Mail: info@lu-immobilien.de
Homepage: www.legrum-immobilien.de
 

Gepflegtes Zweifamilienhaus mit großem Garten

Objektübersicht

Status   Verkauft
Objektart   Zweifamilienhaus
Adresse   64853 Otzberg
Objektnummer   LU1193
Baujahr   1914
Zimmerzahl   7
Kaufpreis   265.000,- €
Garage   ja
Anzahl Stellplätze   4
Garage   Anzahl 4
Energieausweis Baujahr   1914
Anzahl der Einheiten   2
Objekt ist vermietet   ja
Wohn- / Schlafzimmer   2
Schlafzimmer   5
Badezimmer   2
Zustand   gepflegt
bezugsfrei ab   nach Vereinbarung
Provision für Käufer   5,95% v. Kaufpreis inkl. der MwSt. in Höhe von 19%

Objektbeschreibung

Gerne präsentieren wir Ihnen in Otzberg/ Habitzheim ein gepflegtes Zweifamilienhaus nähe Feldrand. Die Immobilie wurde 1914 als Einfamilienhaus mit Keller auf einem 805m² großen Grundstück massiv erbaut. Mit der Zeit wurde das Einfamilienhaus erweitert und umgebaut, somit entstanden zwei separate Wohneinheiten und ein Anbau mit einem Abstellraum und einem Hobbyraum. Die Wohnung im Erdgeschoss bietet Ihnen auf ca. 81m² ein großzügiges Wohn- Esszimmer mit anschließender Küche, ein Tageslichtbad und zwei Schlafzimmer. Das Obergeschoss ist derzeit vermietet und bietet auf 153m², ein großzügiges Wohn- Esszimmer mit Zugang auf den Balkon, eine Küche, ein Tageslichtbad und drei Schlafzimmer. Das Dachgeschoss besitzt 73m² und könnte noch ausgebaut werden. Der Außenbereich wird über die abgeschlossene Hofeinfahrt betreten, eine große massiv erbaute Garage, die Platz für vier Autos bietet befindet sich im hinteren Bereich des Hofes, der Weg zwischen Garage und Haus wurde überdacht und führt sie in den großen Garten mit Terrasse und überdachten Freisitz. Der Garten bietet eine separate Zufahrt im hinteren Bereich, des Weiteren haben Sie viel Platz für einen Pool, zum spielen für die Kinder oder für ein weiteres Carport.

Ausstattung

- Kunststofffenster doppelt verglasst| weiß 1992
- Fußbodenbeläge variieren
- Heizung Baujahr 2005
- Öltanks 2011 ( 5x 800 Liter)
- Garage für 3-4 Autos
- Anbau mit zwei Räumen
- Freisitz/ Terrasse

Lage

Habitzheim ist einer von sieben Ortsteilen der Gemeinde Otzberg im hessischen Landkreis Darmstadt-Dieburg, die sich am 1971 als bis dahin selbständige Gemeinden zur neuen Gemeinde Otzberg zusammengeschlossen haben. Mit seinen circa 1.500 Einwohnern ist Habitzheim der zweitgrößte Ortsteil der Gemeinde. Im Ort selbst sind Bäcker, Kindergarten und Grundschule vorhanden. Weiterführende Schulen sind in Lengfeld, Groß-Umstadt und Dieburg, die mit dem Schulbus erreichbar sind. Durch seine Zentrale Lage ist man schnell auf der B26 und A45 und damit in Darmstadt, Aschaffenburg oder Frankfurt.
Durch seine Nähe zu Groß-Umstadt und dem Odenwald, verfügt es über einen hohen Freizeit- und Erholungswert.

Sonstiges

Gerne präsentieren wir Ihnen dieses gepflegte Zweifamilienhaus in einem persönlichen Gespräch. Wir freuen uns auf Ihren Anruf unter 06162-9165311.

Der Energieausweis ist in Bearbeitung und wird Ihnen nachgereicht.

Kontaktinformation

Legrum Immobilien GmbH
Herr Paul Legrum
Pommernstr. 2
64853 Otzberg

Tel.: 06162 - 9165311
Fax. 06162 - 9165315

E-Mail: info@lu-immobilien.de
Homepage: www.legrum-immobilien.de

Büro: Reinhard-Müller-Ring 12
64853 Otzberg/ Lengfeld

Ihr Ansprechpartner

Frau Melanie Legrum

Telefon: +49 6162 9165311
Telefax: +49 6162 9165315
info@lu-immobilien.de

Seitenansicht Gepflegtes Zweifamilienhaus mit großem Garten
Seitenansicht 
Hof Gepflegtes Zweifamilienhaus mit großem Garten
Hof 
Garten Gepflegtes Zweifamilienhaus mit großem Garten
Garten 
Gartenansicht Gepflegtes Zweifamilienhaus mit großem Garten
Gartenansicht 
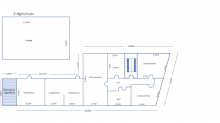
Grundriss EG Gepflegtes Zweifamilienhaus mit großem Garten
Grundriss EG 
Grundriss OG Gepflegtes Zweifamilienhaus mit großem Garten
Grundriss OG 
Grundriss DG Gepflegtes Zweifamilienhaus mit großem Garten
Grundriss DG 
Grundriss KG Gepflegtes Zweifamilienhaus mit großem Garten
Grundriss KG